Státusz: | Eladó |
Azonosító (ID): | 360501084-143 |
Ingatlan ára: | 199.000.000 HUF |
Elérhetőség: | +36-302706998 |
Az ingatlan értékesítője

Elhelyezkedés:
Budapest VI.
Cím:
Liszt Ferenc tér
Tranzakció típusa:
Eladó
Főkategória:
lakás
Alkategória:
egyéb
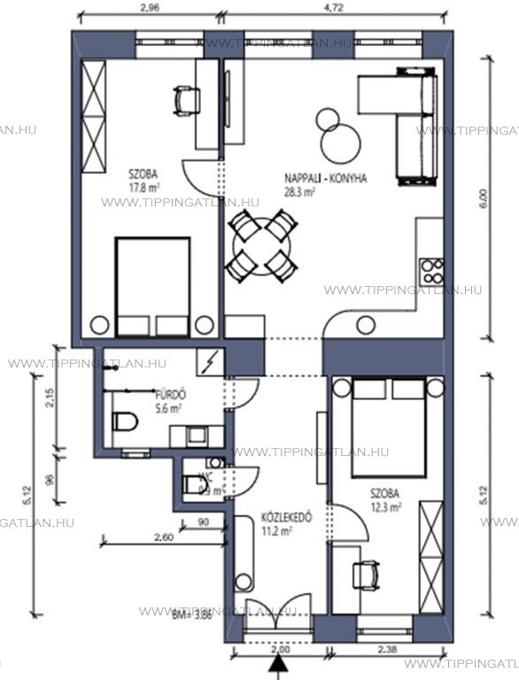
Lakóterület:
73 m2
Szobák száma:
3
Felújítás éve:
2025
Ingatlan állapota:
kitűnő állapotú
Épület emelet száma:
4
Ingatlan emelete:
2. emelet
Kilátás:
panorámás
Gáz:
nincs adat
Villany:
nincs adat
Fűtés:
gáz (cirkó)
Komfort:
összkomfortos
Lift:
van
LISZT FERENC TÉR LEGSZEBB HÁZÁBAN PANORÁMÁS FELÚJÍTOTT LAKÁS
LISZT FERENC tér legszebb társasháza, a belső udvarban szökőkúttal.
Vadonatúj, gyönyörűen felújított, 2 háló + nappalis, 2. emeleti, Liszt
Ferenc térre néző lakás.
* 73 m2
* 2. emelet
* Lift van
* Tervező által megálmodott, teljesen berendezett
* Új cirkófűtés design radiátorokkal
* Klimatizált